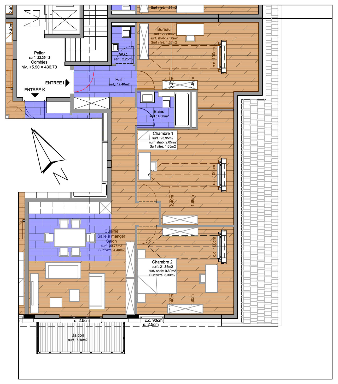
Lot I – Combles
L’appartement de 4.5 pièces à une surface PPE de 142.40 m2 avec un balcon de 7.10m2 orienté au sud/est
Surface PPE
Logement : 140.40m2
Balcon : 7.10m2
Typologie
Cuisine / Salon : 30m2
Bureau : 23m2
Chambre 1 : 24m2
Chambre 2 : 21m2
Salle de bains : 4m2
W.C. : 2m2
Plan