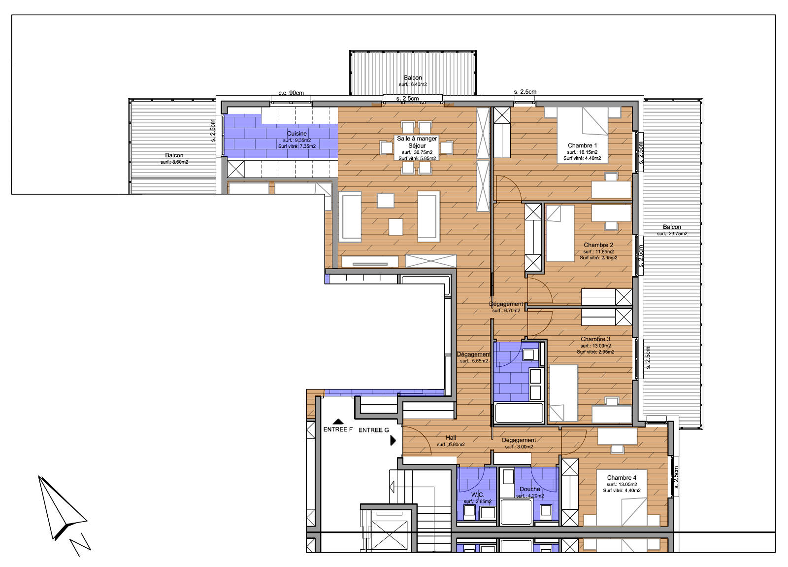
Lot G – 1er étage

L’appartement de 6 pièces à une surface PPE de 170.75 m2 avec trois balcons de 39.45m2 orienté au nord/est

Surface PPE

Logement : 151.05m2

Balcon : 23.75m2

Balcon : 8.60m2

Balcon : 7.10m2

Typologie

Cuisine : 9m2

Salon : 31m2

Chambre 1 : 16m2

Chambre 2 : 12m2

Chambre 3 : 13m2

Chambre 4 : 13m2

Douche : 4m2

Salle de bains : 5m2

W.C. : 2m2

lot-g

Plan

lot-g-plan