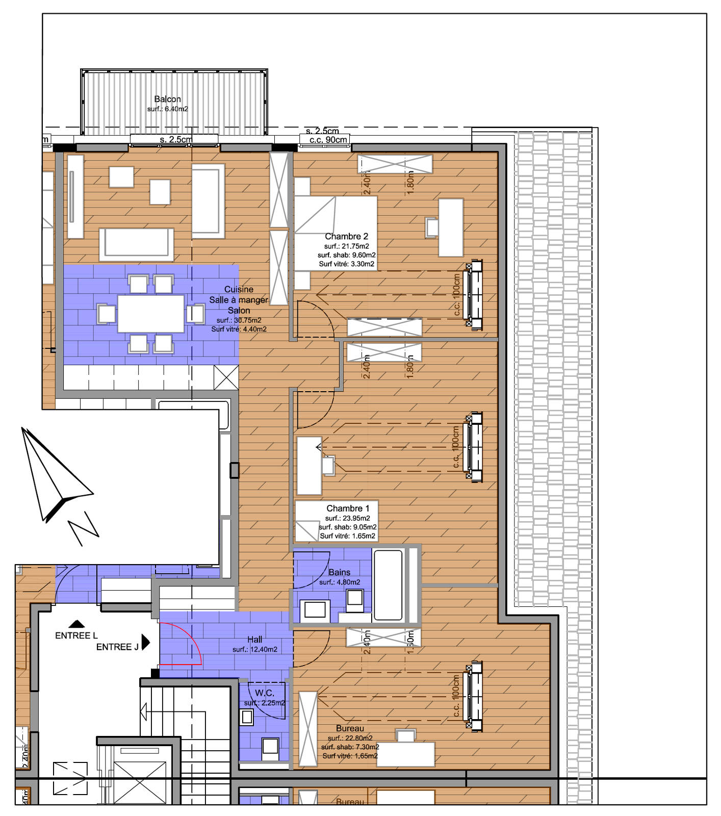
Lot J – Combles

L’appartement de 4.5 pièces à une surface PPE de 142.40 m2 avec un balcon de 7.10m2 orienté au nord/est

Surface PPE

Logement : 140.40m2

Balcon : 7.10m2

Typologie

Cuisine / Salon : 30m2

Bureau : 23m2

Chambre 1 : 24m2

Chambre 2 : 21m2

Salle de bains : 4m2

W.C. : 2m2

lot-j

Plan

lot-j-plan