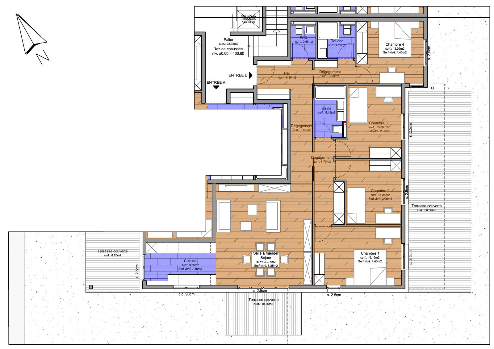
Lot D – Rez de chaussée

L’appartement de 6 pièces à une surface PPE de 182.30 m2 avec trois terrasses de 58.50m2 ainsi qu’un jardin de 170m2 orienté au sud/est

Surface PPE

Logement : 151.05m2

Terrasse : 39.50m2

Terrasse : 10.30m2

Terrasse : 8.70m2

Jardin : 170.0m2

Typologie

Cuisine : 9m2

Salon : 31m2

Chambre 1 : 16m2

Chambre 2 : 12m2

Chambre 3 : 13m2

Chambre 4 : 13m2

Douche : 4m2

Salle de bains : 5m2

W.C. : 2m2

lot-d

Plan

lot-d-plan