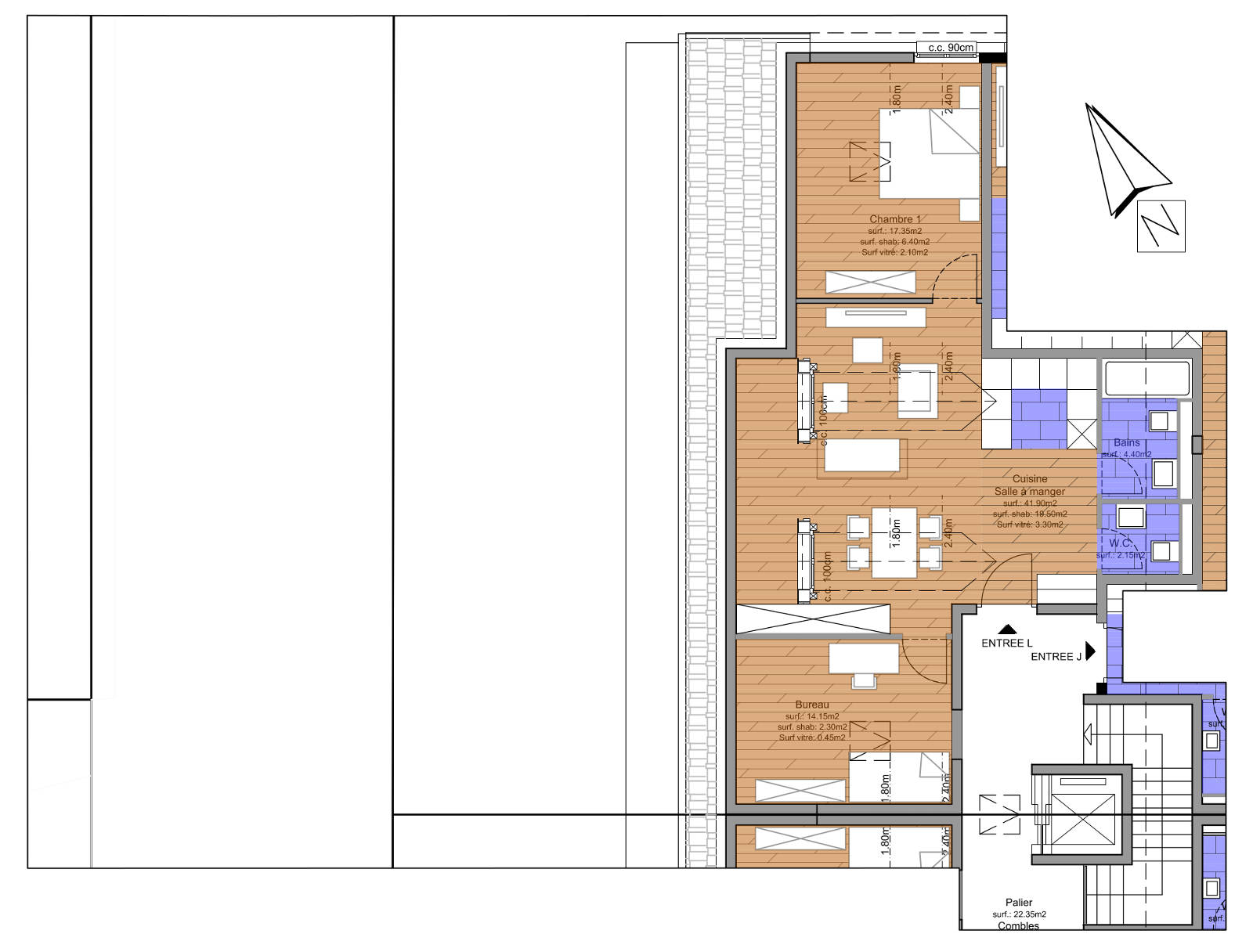
Lot L – Combles
L’appartement de 2.5 pièces à une surface PPE de 93.85 m2 orienté à l’ouest
Surface PPE
Logement : 93.85m2
Typologie
Cuisine / Salon : 42m2
Bureau : 14m2
Chambre 1 : 17m2
Salle de bains : 4m2
W.C. : 2m2
Plan
L’appartement de 2.5 pièces à une surface PPE de 93.85 m2 orienté à l’ouest
Surface PPE
Logement : 93.85m2
Typologie
Cuisine / Salon : 42m2
Bureau : 14m2
Chambre 1 : 17m2
Salle de bains : 4m2
W.C. : 2m2